We meet with Sean as well as Nathan and Daniel from Swiftlee Office last week to discuss the electrical and lighting plans. Hopefully we’ll be able to afford what we came up with. If not we will have to remove some of the nicer lighting fixtures from less important areas. We also found a sink that will work with our master bedroom. We wanted a 48″ long sink and had a heck of a time finding one. Thinking we may have to do some custom expensive thing I was very excited when Jenn found one in our price range ready to go!

Here are some pictures Daniel took while on site. The place is starting to look great!
















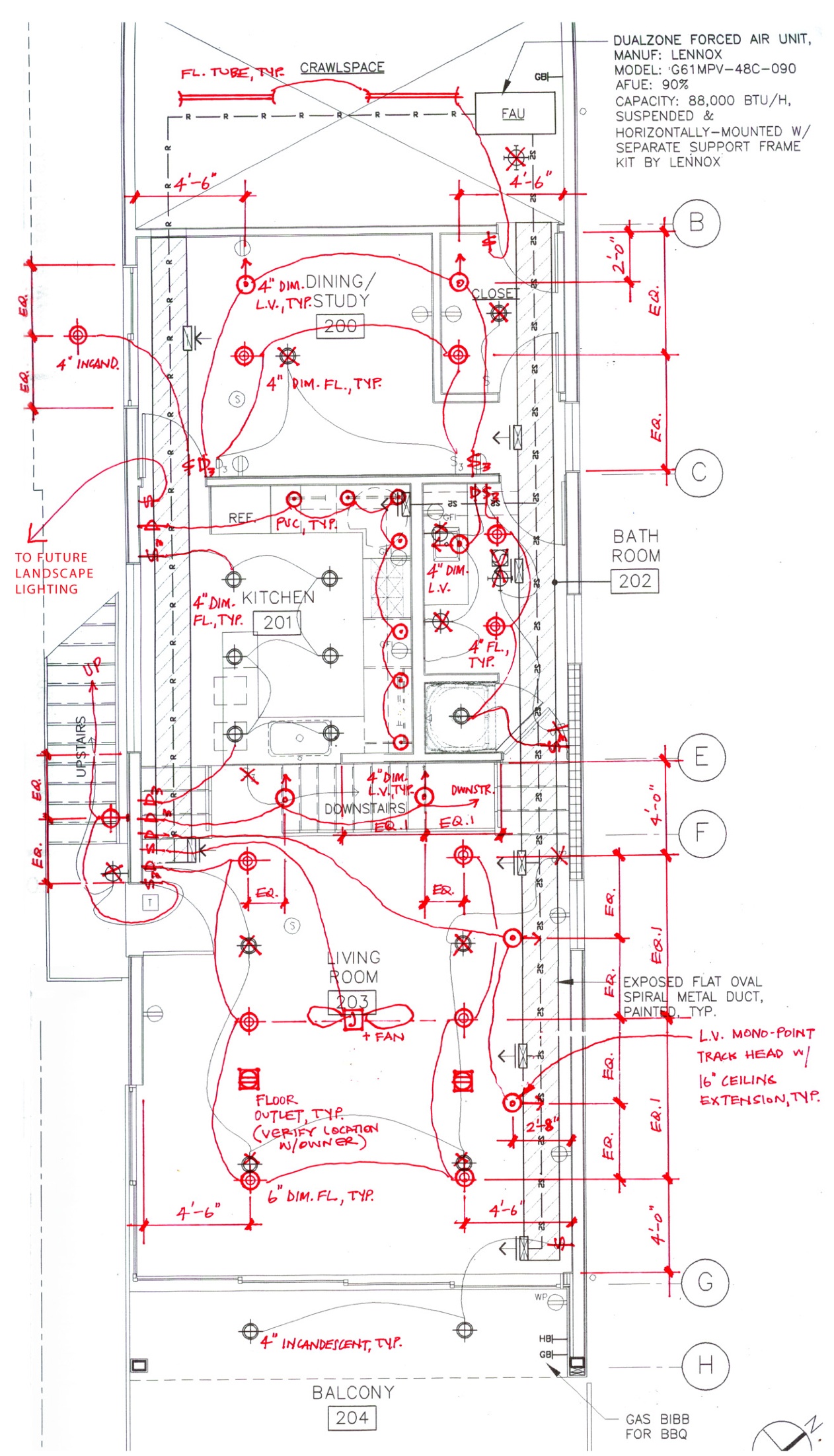
And for those more technically inclined, here are the lighting plans we came up with


One bad note is that over the weekend someone broke into the lock boxes on site and stole a bunch of the guys tools! This is a real shame, these guys work hard and rely on these things for their livelihood.
Chris has had a problem with his tools being stolen from jobs. Just talked to Debbie the other day and they were awoken at 3AM by foot steps. When Geoff went to check, he found a pile of tools from their construction site ready to be lifted…. Terrible!